Rozporządzenie Ministra Infrastruktury w sprawie warunków technicznych, jakim powinny odpowiadać budynki i ich usytuowanie, to dla mnie, jako eksperta w branży, absolutna biblia każdego projektu budowlanego. Bez jego znajomości ani rusz! Ten akt prawny jest fundamentem, na którym opiera się całe polskie budownictwo, określając standardy bezpieczeństwa, funkcjonalności i komfortu. W tym artykule pokażę Ci, gdzie znaleźć jego aktualną wersję w ISAP i jak sprawnie poruszać się po jego zawiłościach, aby uniknąć kosztownych błędów i zrozumieć praktyczne konsekwencje dla Twojej inwestycji.
Rozporządzenie w sprawie warunków technicznych kompleksowy przewodnik po kluczowych przepisach budowlanych
- Oficjalny tekst Rozporządzenia Ministra Infrastruktury z dnia 12 kwietnia 2002 r. znajdziesz w Internetowym Systemie Aktów Prawnych (ISAP) Sejmu RP.
- Akt ten jest podstawą prawną dla projektowania, budowy i użytkowania budynków w Polsce, niezbędną dla architektów, inwestorów i deweloperów.
- Reguluje kluczowe obszary, takie jak usytuowanie budynku, bezpieczeństwo pożarowe, higiena, efektywność energetyczna i dostępność dla osób z niepełnosprawnościami.
- Regularne nowelizacje (np. WT 2021, zmiany dotyczące "patodeweloperki") wprowadzają istotne zmiany, które trzeba śledzić.
- Zrozumienie jego struktury i wymagań jest kluczowe dla uniknięcia kosztownych błędów i zapewnienia zgodności z prawem.

Warunki techniczne: jak znaleźć i zrozumieć kluczowy dokument dla każdej budowy?
Rozporządzenie Ministra Infrastruktury z dnia 12 kwietnia 2002 r. w sprawie warunków technicznych, jakim powinny odpowiadać budynki i ich usytuowanie, to bez wątpienia jeden z najważniejszych aktów prawnych w polskim budownictwie. Jest to akt wykonawczy do ustawy Prawo budowlane, który szczegółowo określa, jak należy projektować, budować i użytkować obiekty budowlane. Odległości od granic działki, wymagania dotyczące nasłonecznienia, bezpieczeństwa pożarowego, efektywności energetycznej czy dostępności dla osób z niepełnosprawnościami to tylko niektóre z obszarów, które reguluje. Jest to dokument niezbędny dla szerokiego grona profesjonalistów: od architektów i konstruktorów, przez instalatorów i deweloperów, po inwestorów i inspektorów nadzoru budowlanego. Krótko mówiąc, każdy, kto ma do czynienia z procesem budowlanym, musi znać i rozumieć to rozporządzenie.
Gdzie szukać oficjalnej i zawsze aktualnej wersji rozporządzenia? (Wskazówka: ISAP)
W dzisiejszych czasach przepisy zmieniają się dynamicznie, a w budownictwie jest to szczególnie widoczne. Dlatego tak ważne jest, aby zawsze korzystać z aktualnego tekstu prawnego. Oficjalną i zawsze aktualną wersję Rozporządzenia Ministra Infrastruktury w sprawie warunków technicznych, jakim powinny odpowiadać budynki i ich usytuowanie, znajdziesz w Internetowym Systemie Aktów Prawnych (ISAP) Sejmu RP. To jest jedyne wiarygodne źródło, które gwarantuje, że masz do czynienia z tekstem jednolitym, uwzględniającym wszystkie dotychczasowe nowelizacje. Wystarczy wejść na stronę isap.sejm.gov.pl i w wyszukiwarce wpisać frazę "warunki techniczne budynki usytuowanie". System automatycznie pokaże Ci najnowszą wersję rozporządzenia. Korzystanie z ISAP to podstawa pewności prawnej i uniknięcia kosztownych błędów wynikających z posługiwania się nieaktualnymi przepisami.
Jak poruszać się po strukturze rozporządzenia, by szybko znaleźć potrzebne informacje?
Rozporządzenie, choć obszerne, ma logiczną strukturę, która ułatwia odnalezienie konkretnych wymagań. Zazwyczaj jest podzielone na działy, które grupują przepisy dotyczące podobnych zagadnień. Znając tę strukturę, możesz szybko nawigować do interesujących Cię sekcji. To tak, jakbyś miał spis treści do każdego projektu budowlanego. Dla mnie to klucz do efektywnej pracy.
- Dział I: Przepisy ogólne definicje, zakres stosowania.
- Dział II: Usytuowanie budynku odległości od granic, nasłonecznienie, teren biologicznie czynny.
- Dział III: Budynki i pomieszczenia ogólne wymagania konstrukcyjne i funkcjonalne.
- Dział IV: Wyposażenie techniczne budynków instalacje wod-kan, grzewcze, wentylacyjne, elektryczne, gazowe.
- Dział V: Bezpieczeństwo konstrukcji ogólne zasady.
- Dział VI: Bezpieczeństwo pożarowe klasy odporności, strefy, drogi ewakuacyjne.
- Dział VII: Bezpieczeństwo użytkowania schody, balustrady, ochrona przed hałasem.
- Dział VIII: Higiena i zdrowie wentylacja, oświetlenie, gospodarka odpadami.
- Dział IX: Ochrona środowiska ogólne zasady.
- Dział X: Oszczędność energii i izolacyjność cieplna współczynniki U, rozwiązania energooszczędne.
- Dział XI: Dostępność dla osób niepełnosprawnych wymagania dotyczące dojść, wejść, komunikacji.

Usytuowanie budynku na działce: kluczowe zasady i odległości
Prawidłowe usytuowanie budynku na działce to podstawa każdego projektu. To nie tylko kwestia estetyki, ale przede wszystkim zgodności z prawem i zapewnienia komfortu przyszłym użytkownikom. Przepisy dotyczące odległości od granic są często pierwszym punktem, który analizuję, ponieważ mają one fundamentalne znaczenie dla możliwości zabudowy danej działki.
Ile metrów od granicy? Analiza minimalnych odległości dla ścian i okien
Jednym z najczęściej analizowanych aspektów rozporządzenia są minimalne odległości budynku od granic działki. To właśnie tutaj często dochodziło do nadużyć, które nazywamy "patodeweloperką", polegających na maksymalnym zagęszczaniu zabudowy. Obecne przepisy są w tym zakresie dość precyzyjne:
- 4 m odległość od granicy działki w przypadku ściany z oknami lub drzwiami.
- 3 m odległość od granicy działki w przypadku ściany bez otworów okiennych lub drzwiowych.
- 1,5 m możliwa odległość od granicy działki dla ściany bez otworów, pod warunkiem, że miejscowy plan zagospodarowania przestrzennego (MPZP) na to pozwala lub w przypadku budynków gospodarczych i garaży o określonych wymiarach.
Pamiętaj, że te odległości mają zapewnić odpowiednie warunki nasłonecznienia, prywatności oraz bezpieczeństwa pożarowego. Niezastosowanie się do nich może skutkować odmową wydania pozwolenia na budowę lub nakazem rozbiórki.
Jak zapewnić odpowiednie nasłonecznienie pomieszczeń zgodnie z przepisami?
Nasłonecznienie to kluczowy element komfortu i zdrowia mieszkańców, dlatego przepisy warunków technicznych szczegółowo regulują ten aspekt. W pomieszczeniach mieszkalnych musimy zapewnić co najmniej 3 godziny nasłonecznienia w dniach równonocy (21 marca i 21 września) w godzinach od 7:00 do 16:00. To oznacza, że projektując budynek, musimy wziąć pod uwagę nie tylko jego orientację względem stron świata, ale także zacienienie od sąsiednich budynków czy drzew. W praktyce często wymaga to analizy nasłonecznienia za pomocą specjalistycznych programów, aby mieć pewność, że wszystkie pomieszczenia spełniają te rygorystyczne normy.
Budowa przy granicy lasu: jakie dodatkowe wymagania trzeba spełnić?
Budowa w pobliżu lasu to szczególne wyzwanie, zwłaszcza w kontekście bezpieczeństwa pożarowego. Rozporządzenie nakłada na inwestorów dodatkowe obowiązki, które mają na celu ochronę zarówno budynku, jak i samego lasu. Zazwyczaj wymagane jest zachowanie odpowiednich pasów ochronnych, które mogą mieć szerokość nawet kilkunastu metrów, wolnych od materiałów łatwopalnych. Ponadto, w zależności od lokalnych przepisów przeciwpożarowych, mogą być wymagane specjalne rozwiązania konstrukcyjne, takie jak niepalne materiały elewacyjne czy systemy nawadniania. Zawsze w takiej sytuacji zalecam konsultację z rzeczoznawcą ds. zabezpieczeń przeciwpożarowych.
Teren biologicznie czynny: dlaczego jego minimalna powierzchnia jest tak ważna?
Pojęcie terenu biologicznie czynnego zyskało na znaczeniu w ostatnich latach, stając się jednym z narzędzi walki z "patodeweloperką". Jest to obszar działki, który jest pokryty roślinnością, umożliwia naturalną retencję wody i nie jest utwardzony. Jego minimalna powierzchnia, często określana w MPZP lub decyzji o warunkach zabudowy, jest kluczowa dla środowiska, mikroklimatu oraz komfortu mieszkańców. Zbyt mała powierzchnia biologicznie czynna prowadzi do problemów z odprowadzaniem wód opadowych, przegrzewaniem się terenów miejskich i brakiem zieleni. Dążymy do tego, aby w miastach było jak najwięcej zieleni, a przepisy warunków technicznych mają w tym pomóc.

Bezpieczeństwo pożarowe: ochrona życia i mienia w przepisach
Bezpieczeństwo pożarowe to dla mnie absolutny priorytet. Przepisy w tym zakresie są niezwykle rozbudowane i mają na celu ochronę życia ludzkiego oraz minimalizowanie strat materialnych w przypadku pożaru. To obszar, w którym nie ma miejsca na kompromisy.
Klasy odporności pożarowej: jak przypisuje się je do budynków?
Każdy budynek, w zależności od przeznaczenia, wysokości i kategorii zagrożenia pożarowego, musi spełniać określone wymagania dotyczące odporności pożarowej. Klasy odporności pożarowej budynków oznaczane są literami (np. A, B, C, D, E), gdzie klasa A oznacza najwyższą odporność. Elementy konstrukcyjne budynku również posiadają swoje klasy odporności, określane symbolami R, E, I:
- R (nośność ogniowa) zdolność elementu do zachowania funkcji nośnej pod wpływem ognia.
- E (szczelność ogniowa) zdolność elementu do zapobiegania przenikaniu ognia i gorących gazów.
- I (izolacyjność ogniowa) zdolność elementu do ograniczenia wzrostu temperatury po stronie nienarażonej na ogień.
Przykładowo, ściana nośna oddzielenia przeciwpożarowego często musi spełniać wymaganie REI 120, co oznacza, że przez 120 minut musi zachować nośność, szczelność i izolacyjność ogniową. To bardzo ważne, aby odpowiednio dobrać materiały i rozwiązania konstrukcyjne do wymaganej klasy odporności.
Drogi ewakuacyjne, które ratują życie: najważniejsze wymagania projektowe
Drogi ewakuacyjne to krwiobieg bezpieczeństwa w każdym budynku. Ich prawidłowe zaprojektowanie i wykonanie jest absolutnie kluczowe dla szybkiej i bezpiecznej ewakuacji ludzi w przypadku zagrożenia. Przepisy określają szereg wymagań, które muszą być spełnione:
- Minimalna szerokość np. 1,2 m dla korytarzy, 0,9 m dla drzwi.
- Długość dróg ewakuacyjnych ograniczona, aby zapewnić szybkie dotarcie do bezpiecznej strefy.
- Oświetlenie awaryjne i ewakuacyjne musi działać nawet w przypadku awarii zasilania.
- Oznakowanie czytelne i widoczne, wskazujące kierunek ewakuacji.
- Zabezpieczenia przed zadymieniem systemy oddymiające, klapy dymowe, wentylacja pożarowa.
- Materiały niepalne drogi ewakuacyjne muszą być wykonane z materiałów o odpowiedniej klasie reakcji na ogień.
Pamiętaj, że każdy detal ma znaczenie, a błędy w tym obszarze mogą mieć tragiczne konsekwencje.
Strefy pożarowe i oddzielenia przeciwpożarowe: fundamenty bezpieczeństwa
Koncepcja stref pożarowych i oddzieleń przeciwpożarowych jest fundamentem ochrony przed rozprzestrzenianiem się ognia. Strefa pożarowa to wydzielona część budynku, która w przypadku pożaru ma ograniczyć jego rozwój do tej właśnie strefy. Oddzielenia przeciwpożarowe, takie jak ściany i stropy o odpowiedniej klasie odporności ogniowej, mają za zadanie zapobiec przenikaniu ognia i dymu do sąsiednich stref. Ich prawidłowe zaprojektowanie i wykonanie jest kluczowe dla ograniczenia strat i umożliwienia skutecznej akcji ratowniczej. To właśnie dzięki nim pożar w jednym mieszkaniu nie powinien rozprzestrzenić się na cały budynek.
Instalacje w budynku a ryzyko pożaru: o czym trzeba pamiętać?
Instalacje techniczne w budynku, takie jak elektryczne, gazowe czy wentylacyjne, mogą stanowić potencjalne źródło zapłonu lub drogę rozprzestrzeniania się ognia i dymu. Dlatego przepisy warunków technicznych szczegółowo regulują ich projektowanie i wykonanie w kontekście bezpieczeństwa pożarowego. Należy pamiętać o stosowaniu odpowiednich przepustów instalacyjnych o wymaganej odporności ogniowej, które zapobiegają przenikaniu ognia przez otwory w przegrodach. Klapy przeciwpożarowe w systemach wentylacyjnych są niezbędne do odcięcia dopływu powietrza i zapobiegania rozprzestrzenianiu się dymu. Właściwe zabezpieczenie instalacji to jeden z kluczowych elementów kompleksowego systemu ochrony przeciwpożarowej.
Komfort i zdrowie mieszkańców: wymagania wpływające na codzienne życie
Projektowanie budynków to nie tylko kwestia bezpieczeństwa i estetyki, ale także zapewnienia odpowiedniego komfortu i zdrowia dla ich użytkowników. Rozporządzenie w sprawie warunków technicznych szczegółowo reguluje te aspekty, wpływając na jakość życia w każdym nowo powstałym obiekcie.
Wentylacja grawitacyjna czy mechaniczna? Co mówią przepisy?
Wentylacja to podstawa zdrowego mikroklimatu w pomieszczeniach. Przepisy rozróżniają dwa główne typy systemów:
| Typ wentylacji | Charakterystyka/Wymagania |
|---|---|
| Wentylacja grawitacyjna | Opiera się na naturalnym ciągu kominowym. Wymaga odpowiednich kanałów wentylacyjnych i nawiewników. Jest prosta i tania w eksploatacji, ale jej skuteczność zależy od warunków atmosferycznych (temperatura, wiatr). Często niewystarczająca w szczelnych, energooszczędnych budynkach. |
| Wentylacja mechaniczna | Wymuszony przepływ powietrza za pomocą wentylatorów. Może być wywiewna, nawiewna lub nawiewno-wywiewna z odzyskiem ciepła (rekuperacja). Zapewnia stałą wymianę powietrza niezależnie od warunków zewnętrznych. Jest wymagana w niektórych typach budynków (np. wysokich) lub w pomieszczeniach bez okien. Zapewnia lepszą jakość powietrza i efektywność energetyczną. |
W nowych, energooszczędnych budynkach coraz częściej zaleca się, a nawet wymaga, stosowania wentylacji mechanicznej z odzyskiem ciepła, aby zapewnić odpowiednią jakość powietrza przy jednoczesnym minimalizowaniu strat energii.
Ochrona przed hałasem: jak nowe regulacje wpływają na akustykę w mieszkaniach?
Hałas to jeden z głównych czynników obniżających komfort życia, zwłaszcza w gęstej zabudowie miejskiej. Rozporządzenie kładzie duży nacisk na ochronę przed hałasem, zarówno tym pochodzącym z zewnątrz (ruch uliczny, sąsiedzi), jak i wewnętrznym (instalacje, inne pomieszczenia w budynku). Wymagane są odpowiednie parametry izolacyjności akustycznej przegród zewnętrznych (ścian, okien, drzwi) oraz wewnętrznych (ścian między mieszkaniami, stropów). Ostatnie nowelizacje mają na celu lepsze wyciszenie mieszkań, co jest odpowiedzią na rosnące oczekiwania mieszkańców i problem "patodeweloperki", gdzie często oszczędzano na akustyce. Pamiętaj, że dobra izolacja akustyczna to inwestycja w spokój i zdrowie.
Woda, ścieki i odpady: higieniczne standardy zapisane w rozporządzeniu
Instalacje wodociągowe, kanalizacyjne i systemy usuwania odpadów to podstawa higieny i zdrowia w każdym budynku. Rozporządzenie precyzyjnie określa wymagania dotyczące ich projektowania i wykonania. Musimy zapewnić odpowiednią jakość wody pitnej, efektywne odprowadzanie ścieków oraz bezpieczne i higieniczne gromadzenie i usuwanie odpadów stałych. To obejmuje m.in. odpowiednie ciśnienie wody, zabezpieczenie instalacji przed zanieczyszczeniem, właściwe spadki rur kanalizacyjnych oraz projektowanie pomieszczeń na odpady z uwzględnieniem zasad sanitarnych. Dbałość o te aspekty to dbałość o zdrowie publiczne i ochronę środowiska.
Światło dzienne w pomieszczeniach: jakie normy musi spełnić projekt?
Dostęp do światła dziennego jest nie tylko kwestią estetyki, ale przede wszystkim zdrowia i dobrego samopoczucia. Przepisy warunków technicznych jasno określają, że pomieszczenia przeznaczone na pobyt ludzi muszą mieć zapewniony odpowiedni dostęp do światła naturalnego. Kluczowym wskaźnikiem jest tu stosunek powierzchni okien do powierzchni podłogi. Dla pomieszczeń mieszkalnych minimalny stosunek powierzchni okien (liczonej w świetle ościeżnicy) do powierzchni podłogi musi wynosić co najmniej 1:8. W innych pomieszczeniach, gdzie wymagane jest oświetlenie dzienne, ten stosunek nie może być mniejszy niż 1:12. To oznacza, że projektując, musimy zadbać o odpowiednie wymiary i rozmieszczenie okien, aby zapewnić wystarczającą ilość światła.Oszczędność energii i izolacyjność cieplna: standardy na miarę przyszłości
Współczesne budownictwo kładzie ogromny nacisk na efektywność energetyczną. To nie tylko kwestia ekologii, ale także realnych oszczędności dla użytkowników. Jako projektant, zawsze zwracam szczególną uwagę na te aspekty, ponieważ normy w tym zakresie są coraz bardziej rygorystyczne.
Współczynnik przenikania ciepła (U): jak interpretować wartości dla ścian, dachów i okien?
Współczynnik przenikania ciepła (U) to kluczowy parametr, który określa, ile ciepła ucieka przez przegrodę (ścianę, dach, okno) na zewnątrz. Im niższa wartość U, tym lepsza izolacyjność cieplna i mniejsze straty energii. Wymagania dotyczące maksymalnych wartości U są regularnie zaostrzane, a ostatnia duża zmiana to WT 2021. Oto przykładowe maksymalne wartości U:
- Ściany zewnętrzne Umax = 0,20 W/(m²·K)
- Dachy i stropy pod nieogrzewanymi poddaszami Umax = 0,15 W/(m²·K)
- Okna i drzwi balkonowe Umax = 0,90 W/(m²·K) (dla temperatury wewnętrznej ≥ 16°C)
- Drzwi zewnętrzne Umax = 1,3 W/(m²·K)
Zrozumienie i prawidłowe zastosowanie tych wartości jest fundamentalne dla spełnienia wymagań efektywności energetycznej. To właśnie one decydują o tym, ile będziemy płacić za ogrzewanie.
Czy Twój projekt spełnia aktualne normy energetyczne (WT)?
Weryfikacja zgodności projektu z aktualnymi warunkami technicznymi w zakresie efektywności energetycznej to złożony proces. Nie chodzi tylko o spełnienie poszczególnych wartości współczynnika U, ale także o ogólny bilans energetyczny budynku, który często jest przedstawiany w formie świadectwa charakterystyki energetycznej. Wymagania są zaostrzane w kierunku budownictwa niemal zeroenergetycznego, co oznacza, że budynki muszą być coraz bardziej "samowystarczalne" energetycznie. Każdy projekt musi być dokładnie przeliczony i zoptymalizowany pod kątem zużycia energii. To wymaga nie tylko dobrych materiałów izolacyjnych, ale także odpowiedniego projektu bryły budynku, orientacji względem słońca i zastosowania efektywnych systemów grzewczych i wentylacyjnych.Rola odnawialnych źródeł energii w świetle warunków technicznych
Rozporządzenie w sprawie warunków technicznych aktywnie promuje, a w wielu przypadkach wręcz wymaga, stosowania odnawialnych źródeł energii (OZE) w nowych i modernizowanych budynkach. Jest to kluczowy element w dążeniu do budownictwa niskoenergetycznego i zeroenergetycznego. Przykładowe technologie, które wpisują się w te wymagania, to:
- Fotowoltaika produkcja energii elektrycznej ze słońca.
- Pompy ciepła wykorzystanie energii z gruntu, wody lub powietrza do ogrzewania i chłodzenia.
- Kolektory słoneczne podgrzewanie wody użytkowej energią słoneczną.
- Biomasa wykorzystanie paliw pochodzenia roślinnego.
Integracja OZE z projektem budynku staje się standardem i często jest niezbędna do spełnienia rygorystycznych wymogów dotyczących wskaźnika EP (roczne zapotrzebowanie na nieodnawialną energię pierwotną).

Budynek bez barier: projektowanie z myślą o osobach z niepełnosprawnościami
Projektowanie uniwersalne, czyli tworzenie przestrzeni dostępnych dla wszystkich, niezależnie od ich sprawności, to dla mnie nie tylko obowiązek prawny, ale i etyczny. Rozporządzenie w sprawie warunków technicznych szczegółowo reguluje te kwestie, aby każdy mógł swobodnie korzystać z budynków.
Dostępność od A do Z: od miejsca postojowego po drzwi do mieszkania
Dostępność dla osób z niepełnosprawnościami to kompleksowy zestaw wymagań, który obejmuje każdy etap korzystania z budynku. Zaczyna się już na zewnątrz od odpowiednio zaprojektowanych miejsc postojowych dla osób niepełnosprawnych, poprzez równe i szerokie dojścia do budynku. Wejścia muszą być pozbawione progów lub wyposażone w rampy o odpowiednim nachyleniu. Wewnątrz budynku kluczowa jest szeroka komunikacja wewnętrzna korytarze, klatki schodowe z poręczami na dwóch wysokościach, a także windy dostosowane do potrzeb osób na wózkach inwalidzkich. Celem jest stworzenie środowiska, w którym każdy czuje się w pełni samodzielny.
Wymiary, pochylnie i windy: konkretne wytyczne z rozporządzenia
Rozporządzenie precyzyjnie określa wymiary i parametry, które muszą być spełnione, aby budynek był dostępny. To są konkretne wytyczne, które muszę zawsze mieć na uwadze:
- Szerokość drzwi minimum 0,9 m w świetle ościeżnicy.
- Szerokość korytarzy minimum 1,2 m.
- Powierzchnie manewrowe np. przy drzwiach, windach, w łazienkach, umożliwiające obrót wózka (koło o średnicy 1,5 m).
- Pochylnie maksymalne nachylenie 8% (1:12), z odpowiednimi spocznikami co 9 m długości. Muszą być wyposażone w poręcze i krawężniki.
- Windy muszą być odpowiednio przestronne (np. minimum 1,1 m x 1,4 m), z przyciskami na odpowiedniej wysokości, oznaczeniami w alfabecie Braille’a i sygnalizacją dźwiękową.
Każdy z tych parametrów ma ogromne znaczenie dla funkcjonalności i bezpieczeństwa.
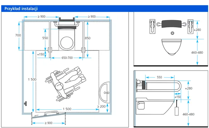
Jak prawidłowo zaprojektować łazienkę dla osoby z niepełnosprawnością?
Łazienka to jedno z najważniejszych pomieszczeń, które musi być w pełni dostępne. Projektując ją, muszę pamiętać o zapewnieniu odpowiedniej przestrzeni manewrowej dla wózka inwalidzkiego (minimum 1,5 m średnicy). Urządzenia sanitarne muszą być zamontowane na odpowiedniej wysokości np. umywalka z regulacją wysokości lub zamontowana tak, aby umożliwić podjazd wózkiem. Niezbędne są uchwyty ścienne, zarówno stałe, jak i składane, ułatwiające korzystanie z toalety i prysznica. Armatura powinna być łatwa w obsłudze, najlepiej jednouchwytowa. Warto również pomyśleć o systemach przywoławczych, które w razie potrzeby umożliwią wezwanie pomocy. To są detale, które realnie wpływają na samodzielność i godność.
Przeczytaj również: Budowa budynku gospodarczego: 3 drogi do legalności. Wybierz swoją!
Najczęstsze błędy i pułapki w warunkach technicznych
Nawet doświadczeni projektanci i inwestorzy mogą popełniać błędy, zwłaszcza w obliczu dynamicznie zmieniających się przepisów. Z mojej perspektywy, najczęstsze pułapki wynikają z niedokładnej interpretacji lub braku świadomości najnowszych nowelizacji. Właśnie dlatego tak ważne jest ciągłe doskonalenie wiedzy i śledzenie zmian.
Gdzie projektanci i inwestorzy mylą się najczęściej? Praktyczne przykłady
Na przestrzeni lat widziałem wiele projektów, które wymagały korekt ze względu na błędy w stosowaniu warunków technicznych. Często są to te same, powtarzające się problemy, które niestety bywają efektem dążenia do maksymalizacji zysku kosztem jakości, czyli tzw. "patodeweloperki". Oto kilka z nich:
- Minimalna powierzchnia lokalu użytkowego (25 m²) często próbuje się obejść ten przepis, tworząc mikroapartamenty, które formalnie są lokalami użytkowymi, ale faktycznie pełnią funkcje mieszkalne.
- Odległości od granicy działki nagminne są próby zmniejszania wymaganych 3 m lub 4 m, co prowadzi do zacienienia sąsiednich działek i braku prywatności.
- Minimalna powierzchnia terenu biologicznie czynnego deweloperzy często minimalizują zieleń na rzecz utwardzonych parkingów, co jest niezgodne z duchem i literą prawa.
- Nasłonecznienie pomieszczeń projektowanie budynków w taki sposób, że mieszkania nie spełniają norm nasłonecznienia, zwłaszcza w gęstej zabudowie.
- Niewłaściwe projektowanie miejsc postojowych zbyt mała liczba miejsc, brak miejsc dla osób z niepełnosprawnościami lub ich nieprawidłowe wymiary.
- Brak odpowiedniej izolacji akustycznej oszczędności na materiałach i technologiach prowadzące do niskiego komfortu akustycznego w mieszkaniach.
Konsekwencje takich błędów są zawsze kosztowne od konieczności przeprojektowania, przez kary finansowe, aż po odmowę odbioru budynku.
Zmiany w przepisach a "stare" projekty: co zrobić, gdy prawo się zmienia w trakcie inwestycji?
To jest jeden z najbardziej palących problemów w branży budowlanej. Często zdarza się, że w trakcie trwania inwestycji, która może trwać kilka lat, wchodzą w życie nowe przepisy. Kluczowa jest tu zasada, że do projektów, dla których wniosek o pozwolenie na budowę został złożony przed wejściem w życie nowelizacji, stosuje się przepisy dotychczasowe. Jest to tzw. zasada "starego prawa". Jednakże, jeśli inwestor chce skorzystać z nowszych, korzystniejszych dla niego rozwiązań, może to zrobić, pod warunkiem dostosowania całego projektu do nowych przepisów. W przypadku wątpliwości lub konieczności odstępstwa od przepisów, należy złożyć odpowiedni wniosek do organu administracji architektoniczno-budowlanej, który po zasięgnięciu opinii rzeczoznawców może wyrazić zgodę na odstępstwo. Zawsze rekomenduję bieżącą analizę zmian i, w razie potrzeby, konsultacje prawne.
Jak uniknąć kosztownych błędów na etapie projektu budowlanego?
Uniknięcie błędów na etapie projektu budowlanego to klucz do sprawnej i ekonomicznej realizacji inwestycji. Z mojej perspektywy, te strategie są najbardziej efektywne:
- Dokładna analiza przepisów: Zawsze zaczynaj od szczegółowej analizy aktualnego tekstu Rozporządzenia w sprawie warunków technicznych oraz miejscowego planu zagospodarowania przestrzennego lub decyzji o warunkach zabudowy.
- Korzystanie z aktualnych tekstów prawnych: Zawsze posługuj się tekstem jednolitym z ISAP. Nigdy nie polegaj na nieoficjalnych źródłach czy starych wydrukach.
- Konsultacje z ekspertami: W przypadku wątpliwości nie wahaj się konsultować z rzeczoznawcami (np. ds. ppoż., sanitarnymi, energetycznymi), prawnikami budowlanymi czy doświadczonymi architektami. Ich wiedza może zaoszczędzić Ci wiele problemów.
- Bieżące śledzenie nowelizacji: Subskrybuj biuletyny branżowe, śledź strony rządowe i portale eksperckie, aby być na bieżąco z każdą zmianą w przepisach.
- Weryfikacja projektu: Zleć niezależną weryfikację projektu przez innego specjalistę, zwłaszcza w kluczowych obszarach, takich jak bezpieczeństwo pożarowe czy efektywność energetyczna.
- Dokumentacja fotograficzna i protokoły: Podczas realizacji inwestycji, dokumentuj każdy etap prac, zwłaszcza te, które są trudne do sprawdzenia po zakończeniu budowy.






